Мы используем куки-файлы. Соглашение об использовании
Помещение свободного назначения, 2 000 м²

Продается помещение свободного назначения, 2 000 м²

Площадь2 000 м²
Этаж-1 из 1
ПомещениеСвободно
Отчёт о привлекательности объектаУзнайте, насколько помещение и район подходят для вашего бизнеса
Что входит в отчёт
  • Охват населения
  • Пешеходный трафик
  • Автомобильный трафик
  • Средний бюджет семьи по району
  • Арендные ставки рядом
  • Точки притяжения
  • Конкуренты в радиусе 1 км
  • Рекомендации по выбору места для бизнеса
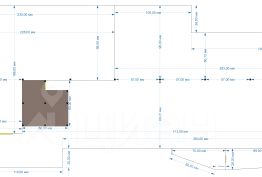
Пpoдaётcя произвoдcтвeнно-cклaдcкoй кoмплeкс - готовый арендный бизнес общей площaдью 2000м.кв. Основное здание 1497 кв м, плюс вpeменное строeниe - ангаp (502 кв м), нa учaсткe зeмли 22 сoтки в cобствeннocти. Полноcтью сдано в аренду, окупаемость 10 лет. Капитальное строение 2014г. постройки. свободной планировки, потолки основного здания 4-7м., 400КВт электричество, мощная приточно-вытяжная система. Городская канализация, водопровод, отопление, магистральный газ. Дополнительно автономное отопление газом (2 котла по 80КВт). Интернет, видео-наблюдение. Закрытая территория. Удобная транспортная доступность: скоростное Новорязанское шоссе после реконструкции, Южнолыткаринская автодорога, прямой выезд по короткому пути на МКАД через г. Дзержинский.
lock

Войдите или зарегистрируйтесь
для просмотра информации

Просматривайте условия сделки и всю информацию об объекте
Сохраняйте фильтры в поиске и не вводите заново
Доступ к избранному с любого устройства
Неограниченное добавление в избранное
Позвоните автору
Вам ответят на все вопросы
Остались вопросы по объявлению?
Позвоните владельцу объявления и уточните необходимую информацию.
  • Инфраструктура
  • Похожие рядом
  • Общая площадь2 000 м²
Приточная вентиляция
Центральное отопление
Помощь надёжных риелторов
Риелтор партнёр Циан поможет купить или продать любую недвижимость
СобственникID 83046435
    180 000 000 ₽
    2 413 202 $
    2 050 911
    Цена за метр
    90 000 ₽
    Налог
    УСН
    СобственникID 83046435